The Den
Our largest indoor accommodation building
About The Den
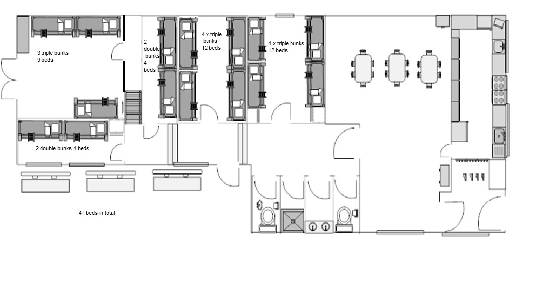
The Den is our largest indoor accommodation building, sleeping up to 41 guests and providing the perfect base for larger groups to stay together in one convenient location. For groups of over 20 guests, one of our self-catering halls is included, offering a dedicated space for meal preparation, dining, and group gatherings.
Designed with Scout, Guide, and school groups in mind, The Den combines comfort with practicality. Keeping everyone under one roof supports group bonding, simplifies supervision, and ensures your stay runs smoothly whatever the weather.
Key Features
All Under One Roof
The largest building on site — keep your whole group together for easier supervision and bonding.
Self-Catering Hall Included
If groups of 20+ prefer to split up, we will include a seperate hall for more dining and cooking space!
Group-Friendly Design
Designed with Scout, Guide, and school groups in mind — combining comfort with practicality.
Free Wi-Fi
Wi-Fi available throughout the building for your convenience.
Ideal For
School Groups
Perfect for residential trips with all pupils and staff together in one building.
Scout & Guide Groups
Ideal for activity weekends and district events for larger groups.
Youth Organisations
Suitable for church groups, sports clubs, and community organisations.
Training Camps
A warm, secure base for training weekends and residential courses.
Downloads & Documents
Other Accommodation Options
Explore our other options:
Alpine Barn
Sleeps: Up to 40 people
Our most versatile building with the highest number of separate bedrooms on site.
The Lodge
Sleeps: Up to 25 people
Recently redecorated, self-contained accommodation ideal for smaller groups.
Chantrey House
Sleeps: Up to 25 people
Comfortable and homely, in a quieter area of the centre with a private garden.
Activities to Consider
Popular activities for groups staying at The Den: